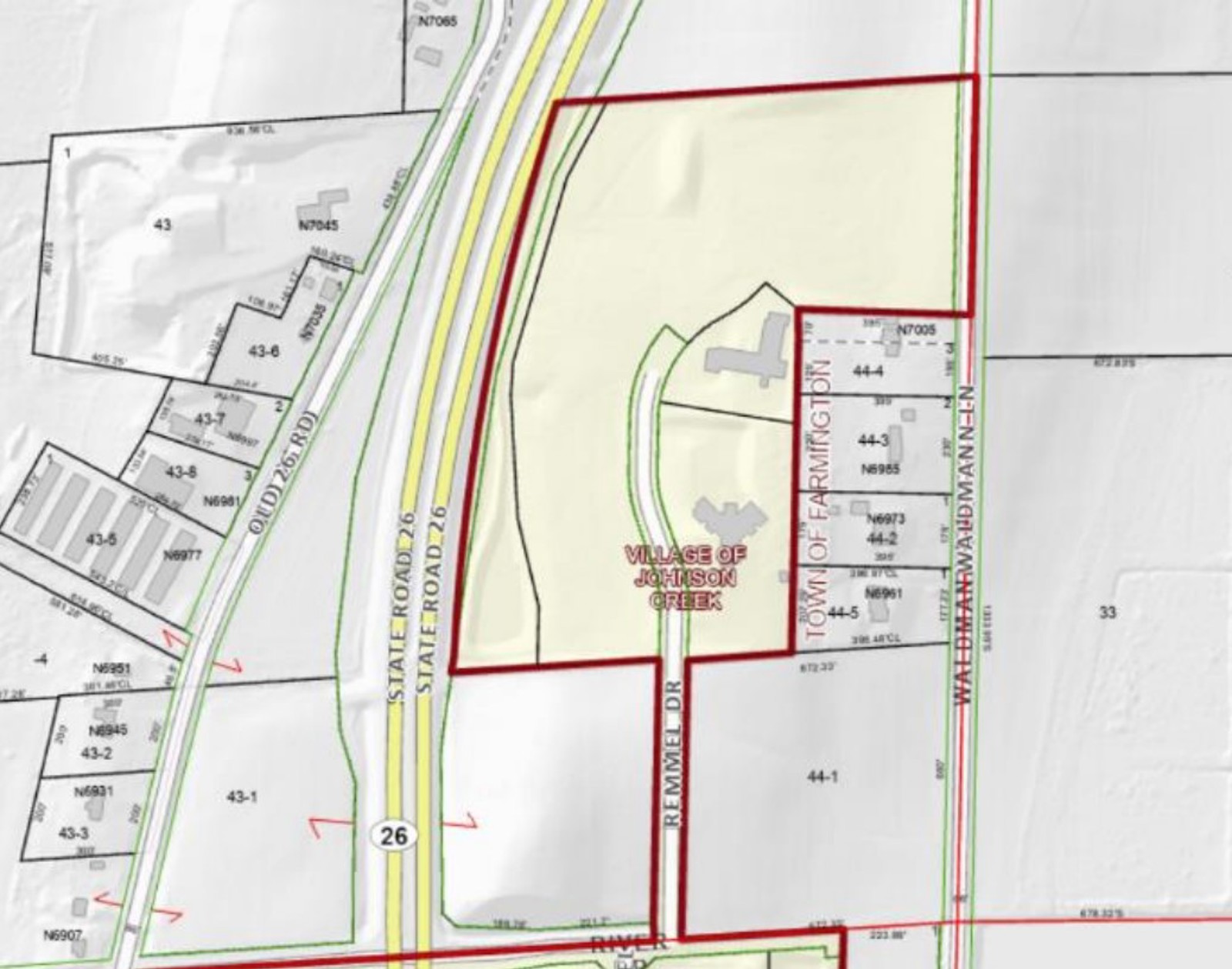
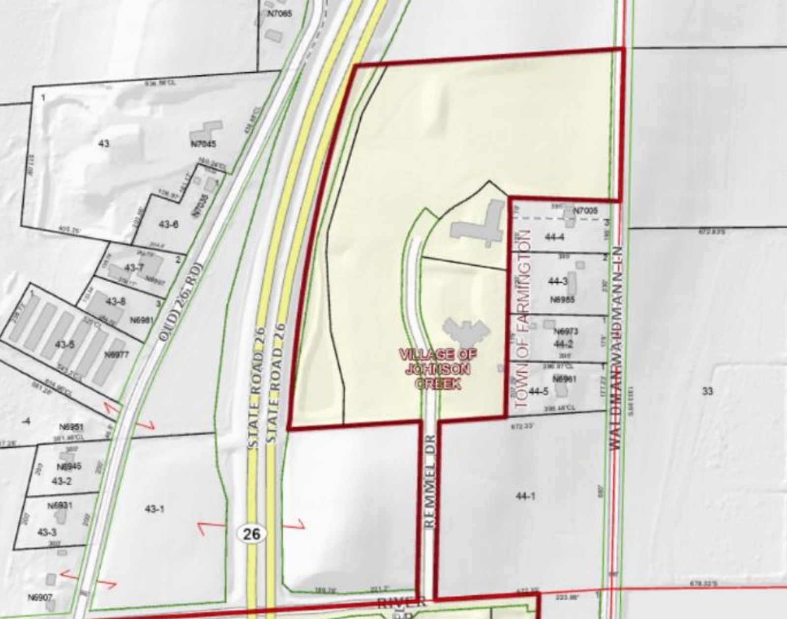
Shadow Ridge

Located at the far north end of Remmel Drive, a second apartment community is being proposed by National Management. This new development would follow a similar design to The Ponds at Johnson Creek, with the potential for more units and expanded amenities, depending on the final site layout. Both communities will offer market-rate apartments with a variety of floor plans, including one-, two-, and three-bedroom units.

Shadow Ridge